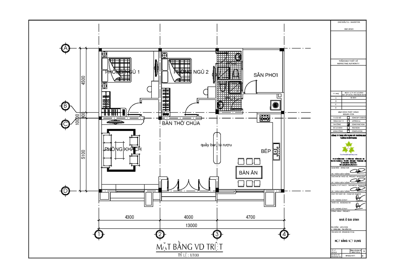
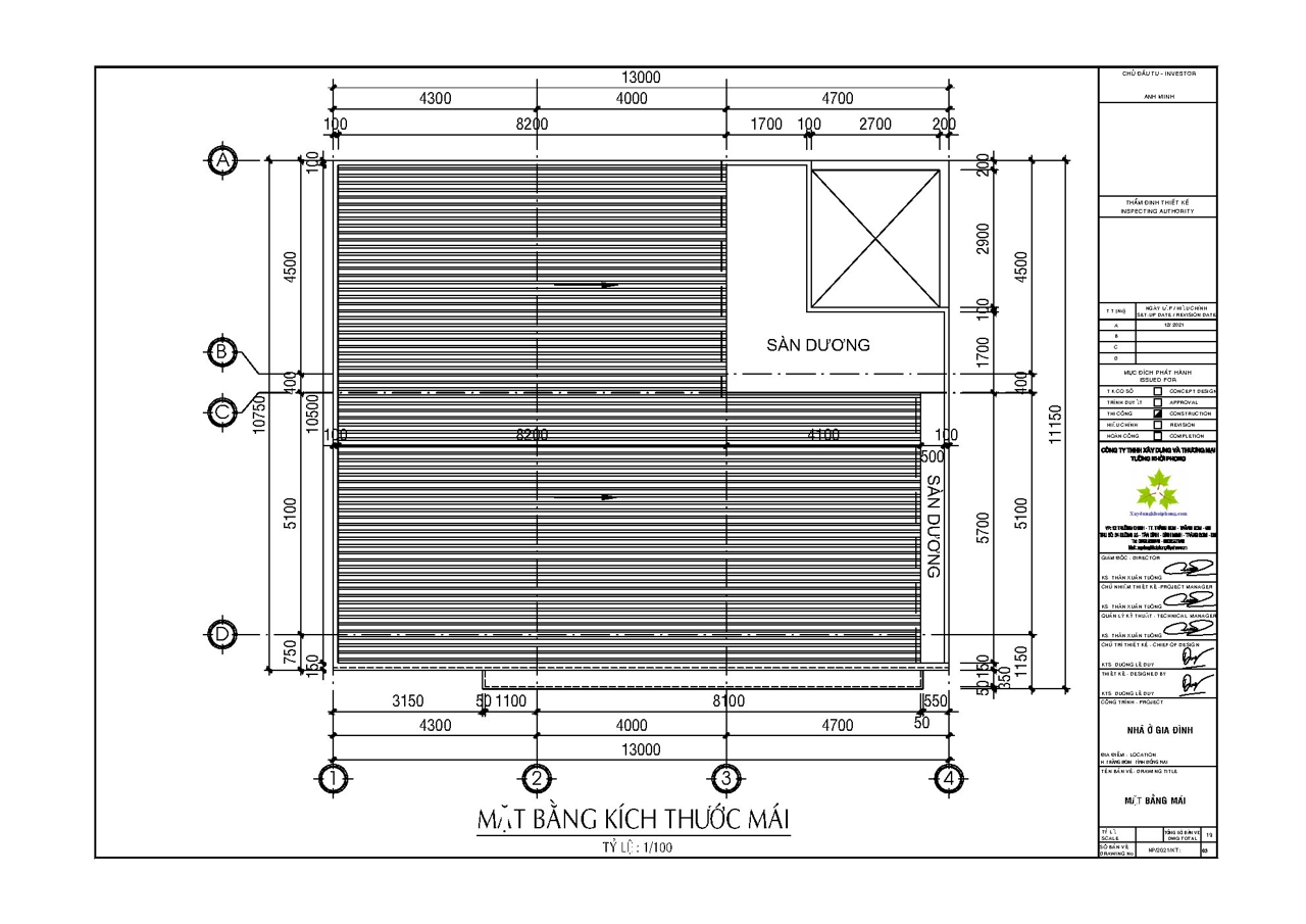
Nhà phố anh Minh
Bài viết liên quan
Nhà phố bán cổ điên anh Phước
Chủ đầu tư: Anh Phước
Địa điểm: TT Trảng Bom, Trảng Bom, Đồng Nai
Nhà phố hiện đại anh Cường
Chủ đầu tư: Anh Cường
Địa điểm: Bắc Sơn, Trảng Bom, Đồng Nai
Nhà phố hiện đại anh Tùng
Chủ đầu tư: Anh Tùng
Địa điểm: TT.Trảng Bom, Trảng Bom, Đồng Nai
Nhà phố anh Nhật
Chủ đầu tư: Anh Nhật
Địa điểm: Lộc Hòa, Trảng Bom, Đồng Nai
Nhà phố anh Truyền
Chủ đầu tư: Anh Truyền
Địa điểm: TT.Trảng Bom, Trảng Bom, Đồng Nai
Nhà phố hiện đại anh Vũ
Chủ đầu tư: Anh Vũ
Địa điểm: Ngũ Phúc, Trảng Bom, Đồng Nai
Nhà phố chị Thúy 2
Chủ đầu tư: Chí Thúy
Địa điểm: TT. Trảng Bom, Trảng Bom, Đồng Nai
Nhà phố chị Hằng
Chủ đầu tư: Chị Hằng
Địa điểm: Bình Minh, Trảng Bom, Đồng Nai
Nhà phố anh Hoàng
Chủ đầu tử: Anh Hoàng
Địa điểm: TT.Trảng Bom, Trảng Bom, Đồng Nai
Nhà phố chị Thúy 1
Chủ đầu tư: Chị Thúy
Địa điểm: TT.Trảng Bom, Trảng Bom, Đồng Nai




























